|
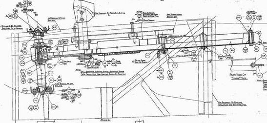
The flight controls for the simulator were fabricated
as per the real aircraft.
This would be required as the forces acting on the controls
would be in the region of 400lbs at times.
Basic construction of the control column.



This photo shows the control column in the later stages of completion.



The spade grip and control column finished.
Rudder assembly.

Early construction of the rudder parts.









The completed rudder pedal assembly.


The rudder bar and heelboard assembly.First trial assembly of the flight controls to the support framework.


New Spade grip


Aileron Control Drum
Progress so far on machining the aileron control drum.







The universal joint for the aileron control drum.

The control column assembly.

|